Bodegas Y Naves Industriales En Renta En México, Tampico, Tamaulipas
ID 118604
Tampico Tamaulipas
   $ 130,000 MXN

Colonia México
Tampico, Tamaulipas


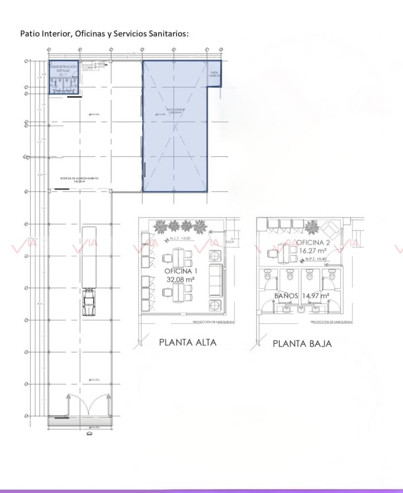
En Bodega Industrial Tampico Tamaulipas encontrarás todo lo que necesitas para llevar a cabo tus operaciones de forma exitosa. Con 4 medios baños y una extensión de 1136M2 de terreno, esta propiedad ofrece 1208 metros de construcción distribuidos en una sola planta. Las 7 lámparas tipo UFO de 100 watts aseguran una iluminación adecuada en todo el espacio. ¡Aprovecha esta oportunidad y haz de esta bodega el lugar ideal para tu negocio!

0 Recamaras
0 Baños completos
4 Medios baños
1 Plantas
0 Estacionamientos
Terreno 1136 m2
Construcción: 1208 m2
  Luz
  Agua
  Bodega
CONTACTA AL ASESOR

América Salazar


(86) 8169-4147

ENVÍA UN MENSAJE AL ASESOR



  
 
¡Llamar! Mensaje